EXSYS – Exellent Engineering Systems
Система вентиляции и кондиционирования в квартире
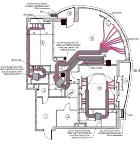
Объект: квартира площадью 143 м2 , ул. Малевича, г. Киев
Какие системы были реализованы:
- система вентиляции и кондиционирования
- система отопления
Проектирование и монтаж систем вентиляции и кондиционирования


При выборе конфигурации систем вентиляции и кондиционирования для квартиры или дома, отдельной и порой самой сложной задачей стоит грамотная интеграция воздуховодов, диффузоров, блоков кондиционеров и вентустановок с дизайнерскими решениями. Успешное решение этой задачи отличает квалифицированную компанию от посредственной.
Специалисты компании Эксис Инжиниринг завершили новый объект – квартира площадью 143 м2 в центре города с дизайнерским ремонтом.
Основными пожеланиями заказчика были:
- сохранение высоты потолков в спальнях и гостиной
- минимальный уровень шума
- минимально заметные решетки (диффузоры) в потолке
- в квартире воздух не должен быть сухим зимой

Результат выполненной работы:
- использование полужестких пластиковых воздуховодов с антибактериальным покрытием диаметром всего 75 мм вместо классической оцинковки для системы вентиляции
- монтаж воздуховодов системы кондиционирования на забивную рейку позволил дополнительно сэкономить 40 мм высоты потолка
- все габаритные блоки вынесли в тех. зону и гардероб, где опуск потолка не так критичен



- выбранное оборудование от Mitsubishi Electric и Maico самое тихое на рынке
- все воздуховоды подобраны так, что скорость движения воздуха в них не превышает 3,5 м/с
- все блоки смонтированы через антивибрационные опоры и вставки

- cмонтированы щелевые диффузоры от Madel, которые идеально впишутся в любой дизайнерский интерьер
- системы вентиляции и кондиционирования объединены на общие диффузоры
- оборудовали систему вентиляции увлажнителем от Condair



Система отопления
Система отопления представлена внутрипольными конвекторами Verano с принудительной конвекцией. Прокладка трубопроводов системы конвекторного отопления была выполнена с использованием фиксаторов поворота и сплошной трубой. В каждом помещении, где запроектирована система поверхностного отопления, установлены комнатные термостаты около выключателей света.

Для заказа проекта и монтажа системы вентиляции и кондиционирования, получения консультации звоните: ☎ (093) 332-03-22, (044) 332-03-22, специалисты Эксис Инжиниринг всегда готовы Вам помочь.